Stucco - boa hora

boa hora

Cliente.
n/a

Arquiteto.
Arquitetos Aliados + Susana Leite

Local.
Porto — Portugal

Data.
2017

Serviços.
Projeto de Fundações e Estruturas

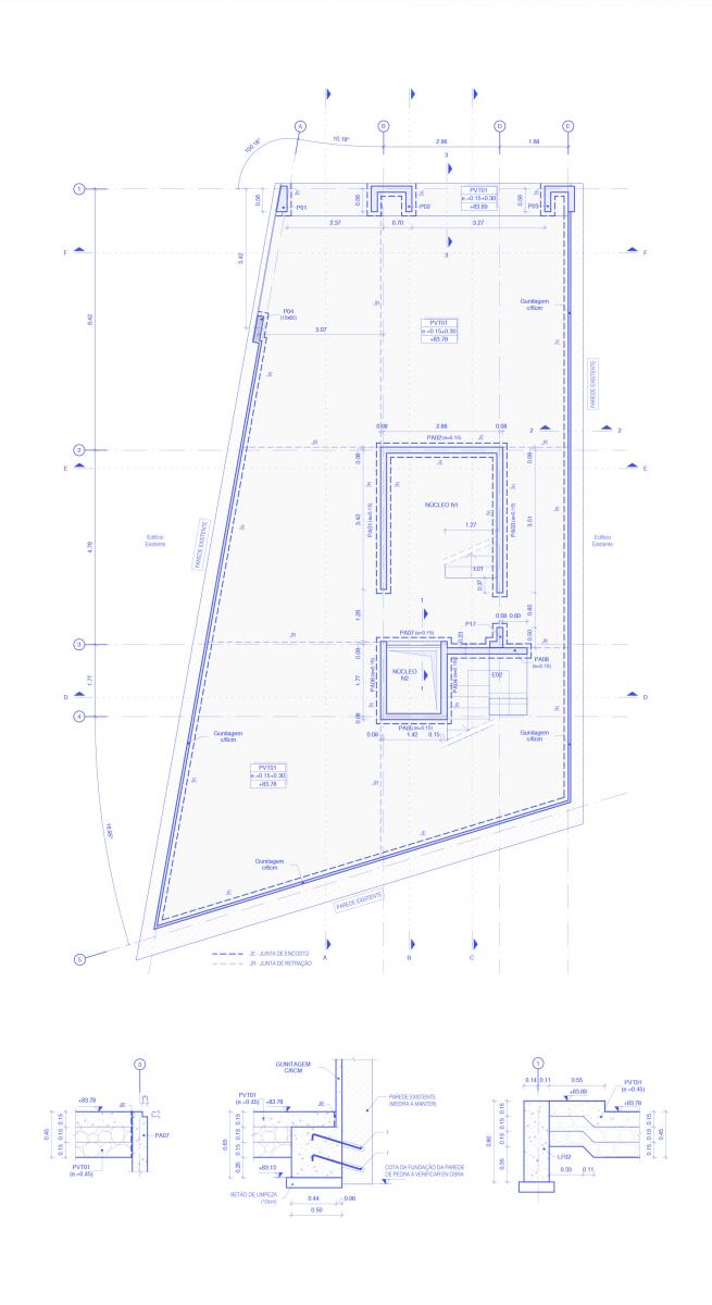
Este projeto contempla a construção de um edifício multifamiliar na Rua da Boa Hora, no Porto. Tanto as lajes como as paredes interiores serão alvo de demolição, ao passo que as paredes de pedra que fazem o perímetro dos dois edifícios e a parede virada para a Rua da Boa Hora serão mantidas e reforçadas. As fundações serão também reforçadas em betão armado com cave, piso térreo e três pisos elevados e cobertura.

prev next